BIM – Building Information Modeling | 21/01/2016

HMQ AG met en œuvre et pratique le BIM et aide les architectes à le mettre en œuvre en leur fournissant des conseils compétents.

Le salon Swissbau, qui s'est déroulé du 12 au 16 janvier 2016 à Bâle, a surtout mis en évidence une chose : dans le domaine de la conception et de la planification, tout le monde parle du BIM (Building Information Modeling). HMQ AG met en œuvre et pratique le BIM et aide les architectes à le mettre en œuvre en leur fournissant des conseils compétents.

Qu'est-ce que le BIM ?

Si vous demandez à dix personnes ce qu'elles comprennent par BIM (Building Information Modeling), vous obtiendrez douze réponses différentes. En fait, toutes les réponses peuvent être correctes à leur manière.

Selon la définition de Wikipédia, le terme « Building Information Modeling » (ou BIM) désigne une méthode permettant d'optimiser la planification, la réalisation et la gestion de bâtiments à l'aide d'un logiciel. Les données pertinentes relatives au bâtiment, qui peuvent varier en fonction des besoins du client, sont saisies numériquement et représentées géométriquement en 3D.

Le rôle de HMQ AG dans le BIM

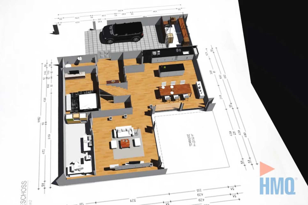
Depuis de nombreuses années, HMQ AG est spécialisée dans la numérisation de bâtiments nécessitant une rénovation et méritant d'être conservés, lorsqu'il n'existe pas de plans numériques fiables de l'objet existant. HMQ AG fournit généralement aux architectes des plans en 2D avec des informations en 3D, c'est-à-dire des plans d'étage, des coupes longitudinales et transversales ainsi que des vues de façade.

Les progrès techniques et le développement des techniques de mesure numériques (par exemple, le balayage laser 3D) ainsi que les possibilités toujours plus performantes de modélisation 3D des données de construction à l'aide de logiciels permettent à HMQ AG de fournir aux architectes des modèles 3D complets dans le format de données souhaité. La modélisation des données de construction ne connaît en principe aucune limite, qu'il s'agisse d'une construction neuve ou ancienne.

Où le BIM est-il utilisé chez HMQ AG ?

« HMQ AG utilise le BIM pour la modélisation 3D des données de construction », explique Daniel Gantenbein, chef du département « Architecture et métré » et membre de la direction. « Il s'agit avant tout de définir les détails de la modélisation 3D et le format d'échange de données, car chaque projet a des exigences différentes. »

« Le BIM est bien plus qu'un simple modèle 3D. Utilisé correctement, il permet aux architectes et aux planificateurs de toujours disposer de la même version du projet, car ils travaillent sur le même fichier. Après avoir modélisé le modèle 3D selon les exigences du client, nous assistons les architectes et les planificateurs en tant que coordinateur BIM dans la mise en œuvre de la méthode BIM. »

Fermer la navigation